Приватний сектор 186м.кв на Мар'янівці (№ 22-387-292)
Ціна: 99 000 $

Адреса: Л.Українки, Житомир, Житомирська, Смоківка
Характеристики
| Ціна: | 99 000 $ |
|---|---|
| № об'єкта: | 22-387-292 |
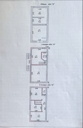
| Тип: | частина будинку |
| Поверхів: | 2 |
| Спалень: | 4 |
| Площа будинку: | 186 м2 |
| Ділянка: | 5 сот |
| Додатково: | гараж |
Опис
Продається половина будинку на Смоківці, вул.Лесі Українки. Загальна площа з гаражем 186м.кв., 2 поверхи, 4 кімнати, всі зручності, 2 санвузли. За бажанням є можливість підведення центральної води та каналізації (всі дозводи є і підведення у подвір'я. В будинку залишаються меблі та побутова техніка. Новий дах металочерепиця, 5 соток приватизованої землі, окреме подвір'я.












































